- Topics
- Campaigning
- Careers
- Colleges
- Community
- Education and training
- Environment
- Equality
- Federation
- General secretary message
- Government
- Health and safety
- History
- Industrial
- International
- Law
- Members at work
- Nautilus news
- Nautilus partnerships
- Netherlands
- Open days
- Opinion
- Organising
- Podcasts from Nautilus
- Sponsored content
- Switzerland
- Technology
- Ukraine
- United Kingdom
- Welfare
Award-winning office and residential complex opens for business at Nautilus Mariners' Park
17 December 2024

Building work is now completed at Nautilus Mariners' Park for the Union's award-winning new head office and residential complex in Wallasey, UK. Seafarers nearing retirement are welcome to check it out for a tour!
The new multi-million pound investment on the grounds of the Mariners' Park Estate combines 27 additional supported living apartments over ground, first and second floors, and the Union's new 210sqm head office on the third floor. The new office had a high profile first task in November 2024, hosting the livestream for the 10th UK Branch Conference from one of the new meeting room spaces.
The construction was begun on 17 July 2023 by the builders, John Turner Construction Group, and the complex began occupation in November 2024. The investment in Mariners' Park won Nautilus Regional Deal of the Year in the 2022 Mersey Maritime Industry Awards, which recognised Nautilus as best in class for investing in jobs and services in the greater Merseyside area.
Seafarers planning their retirement who would like to visit Mariners' Park are welcome to contact the Nautilus Welfare Fund for more information and a tour by emailing welfare@nautilusint.org, or visit www.nautiluswelfarefund.org
Plans are in progress to have the building formally opened in 2025. Below is an overview of the layout and final completion stages.



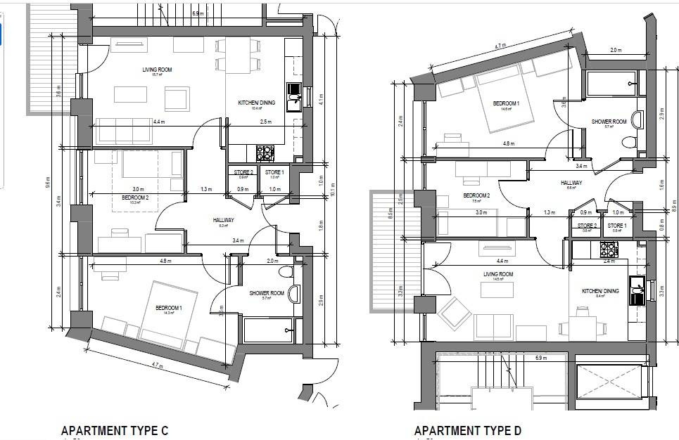
Apartment types C and D layout combinations are also available. Image: Pozzoni


November 2024: finishing touches being made to the landscaping at the entrance to the new Nautilus House complex. On the ground floor is the reception, a meeting room and a communal library. There is also accommodation on the ground floor, as well as first and second floors with views over the River Mersey.

Planning your nautical retirement?
Mariners' Park supports retired and needy seafarers and their dependants who are aged over 55. The park offers a full range of independent living properties; a bespoke supportive living accommodation building for those with care needs; and a 36-bed care home that provides 24/7 care, nursing, dementia and palliative support.
Accommodation is available now for those maritime professionals that have served in the Merchant Navy across all sectors, including maritime pilots and crew on large yachts, as well as those who have served in the Royal Navy.
Arrange a visit to Mariners' Park in Wallasey, UK, to talk about the retirement options or register to have your name added to the accommodation list, by emailing welfare@nautilusint.org or calling +44(0)151 346 8840. There is more information at www.nautiluswelfarefund.org

Living at the Park
What former Union members and other residents interviewed who have lived at the park long-term and more recently appreciate most about living at the Park:
- 'similar life experiences with many other former mariners'
- 'secure living accommodation'
- 'peace of mind that all needs are met on one site'
- 'staff always on hand, and support for a seamless move onto the park'
- 'help with bills, benefits when required'
- 'excellent reputation'
- 'events and activities are always going on'
Image: A view from the third floor office at new Nautilus House over the Mariners' Park estate / Nautilus International
Tags